Menu
Un projet réalisé par :Goulet Lambart architectes  Architecte à Nantes

Back in black

 Nantes - 44
Goulet Lambart architectes
Accueil Projets Back in black

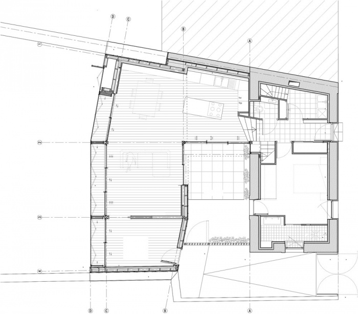
Extension et rénovation d'une maison individuelle.
Existant sur 2 niveaux, extension de plain-pied sur jardin

Back in black

Le bâtiment originel est une maison des années 1930 à laquelle s’ajoute une première extension (1980). L’ensemble est obscur et coupé de son jardin.

La stratégie d’agrandissement est :
- démolir la première extension
- rassembler les zones techniques et les pièces de nuit sur les deux niveaux de la maison existante.
- deployer les pièces de vies dans une extension neuve de plain-pied sur le jardin
- scinder l’extension de l’existant par un patio

La cuisine fait pivot entre bâtiment existant, pièces de vie et patio. L’extension s’ouvre généreusement sur patio et jardin, de sorte que dès la mi-saison, jardin, pièces de vie et patio s’utilisent dans une continuité d’usage.
La façade sur rue est inchangée et le projet ne se découvre que depuis le jardin.
Sa faible hauteur permet un apport de soleil dans le patio et conserve les vues vers le lointain depuis l’étage de l’existant.
Sur le jardin, la façade est entièrement vitrée et des persiennes-accordéons brisent la vue et le soleil. L’extension dont la structure est mixte (bois / métal), est entièrement habillée de zinc anthracite. Le projet se lit comme un simple pli qui se greffe à l’existant

  • Back in black : GRA AXO
  • Back in black : GRA__planRDC
  • Back in black : image_projet_mini_76332
  • Back in black : GRA_démol1
  • Back in black : GRA_entrée1
  • Back in black : GRA_jardin13
  • Back in black : GRA_jardin15
  • Back in black : image_projet_mini_76340
  • Back in black : GRA_jardin16
  • Back in black : GRA_patio5
  • Back in black : GRA_patio7
  • Back in black : GRA_séjour1
  • Back in black : GRA_toit1

Trouvez un architecte pour votre projet

Protection de vos données personnelles

Depuis toujours, architectes-france.com ne transfère aucune donnée personnelle à d'autres acteurs que ceux directement concernés par le projet (architectes, architectes d'intérieur...) et qui appartiennent à son réseau. Nos listes ne sont jamais transmises ou vendues à des partenaires extérieurs, même si ceux-ci appartiennent au domaine de la construction.
Toute modification dans ce domaine ne serait effectuée qu'avec votre consentement.

Je consens à ce que mes données personnelles soient collectées pour permettre à architectes-france de transférer votre projet aux architectes. Seul Architectes-france, ses équipes internes et la maitrise d'oeuvre concernée par le projet y ont accès. Aucune transmission de données à des tiers à l'exclusion de ceux décrits ci dessus n'est réalisée.

Mes données téléphoniques seront uniquement utilisées par Architectes-france.com et les architectes de notre réseau dans le cadre de la qualification et du suivi de mon projet.

Les données sont conservées pendant une durée de 18 mois courant à partir des derniers contacts effectifs entre architectes-france et vous ou architectes-france et un membre de la maitrise d'oeuvre en rapport avec ce projet et qui serait en relation avec architectes-france.

Conformément à la loi « informatique et libertés », vous pouvez exercer votre droit d'accès aux données vous concernant et les faire rectifier en contactant : Architectes-france, 23 avenue du Mirail - parc du Mirail - 33370 Artigues-près Bordeaux. Tél. 05.47.74.51.01 - contact@architectes-france.com

Trouvez un architecte pour votre projet

Protection de vos données personnelles

Depuis toujours, architectes-france.com ne transfère aucune donnée personnelle à d'autres acteurs que ceux directement concernés par le projet (architectes, architectes d'intérieur...) et qui appartiennent à son réseau. Nos listes ne sont jamais transmises ou vendues à des partenaires extérieurs, même si ceux-ci appartiennent au domaine de la construction.
Toute modification dans ce domaine ne serait effectuée qu'avec votre consentement.

Je consens à ce que mes données personnelles soient collectées pour permettre à architectes-france de transférer votre projet aux architectes. Seul Architectes-france, ses équipes internes et la maitrise d'oeuvre concernée par le projet y ont accès. Aucune transmission de données à des tiers à l'exclusion de ceux décrits ci dessus n'est réalisée.

Mes données téléphoniques seront uniquement utilisées par Architectes-france.com et les architectes de notre réseau dans le cadre de la qualification et du suivi de mon projet.

Les données sont conservées pendant une durée de 18 mois courant à partir des derniers contacts effectifs entre architectes-france et vous ou architectes-france et un membre de la maitrise d'oeuvre en rapport avec ce projet et qui serait en relation avec architectes-france.

Conformément à la loi « informatique et libertés », vous pouvez exercer votre droit d'accès aux données vous concernant et les faire rectifier en contactant : Architectes-france, 23 avenue du Mirail - parc du Mirail - 33370 Artigues-près Bordeaux. Tél. 05.47.74.51.01 - contact@architectes-france.com