Menu
Un projet réalisé par :NIM Architecture  Architecte à Montmorency

Extension et rénovation à Montmorency

 Montmorency - 95
NIM Architecture
Accueil Projets Extension et rénovation à Montmorency

Le projet est une extension d'un bâtiment existent et la rénovation de ce dernier. L'esprit voulait être celui d'intégrer au maximum le nouveau bâti dans la végétation tout en tenant compte des strictes réglementation urbanistiques qui nous imposent des distances précises par rapport aux voisins. On s'implante donc sur une limite et on décide d'articuler la toiture pour récupérer la hauteur maxi sachant que sur bord mitoyen on ne peut pas dépasser 260cm. Le dessin ne laisse donc apparaitre que le jeux des lignes de la toiture, le reste n'est que du verre et la toiture même est vegetalisé. L'intérieur profite donc d'un plein de lumière et devient très agréable à vivre pendant que l'extérieur se perd dans le paysage.

Extension et rénovation à Montmorency

Il s'agit d'une superbe occasion de projet: une jeune couple avec trois enfants décide de s'acheter sa première maison. Après avoir beaucoup cherché ils tombent amoureux d'un bien pas très loin d'où ils habitent maintenant: un pavillon années 1910 situé à l'intérieur d'un magnifique terrain de 1000m2, très bien orienté vers le sud)est et légèrement en pente. Ils font appel donc à l'architecte pour la rénovation totale du bâtiment existant (en état d'abandon depuis 20 ans) et pour la création d'une extension moderne destinée à accueillir les pièces de vie. Condition: pouvoir déposer un Permis de Construire dans les plus brefs délais. On avance donc rapidement, les premières dessins des volumes, la définition de l'estimatif et enfin l'adaptation du projet au budget réel, dans deux mois le permis est déposé à la Mairie.

  • Extension et rénovation à Montmorency : P1020838

    DETAIL

  • Extension et rénovation à Montmorency : P1020940

    LA TOITURE VEGETALISE

  • Extension et rénovation à Montmorency : image_projet_mini_18919

    LA 3D

  • Extension et rénovation à Montmorency : P1010854

    LE CHANTIER

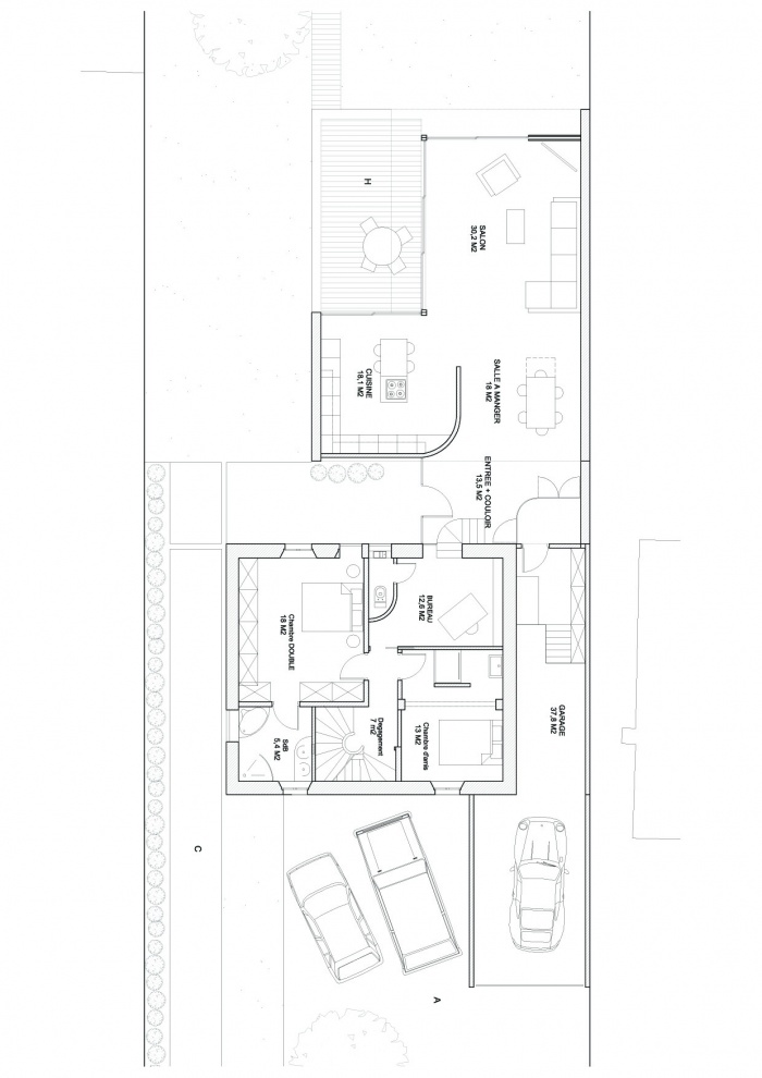
  • Extension et rénovation à Montmorency : PLAN

    LE PLAN DU RDC

  • Extension et rénovation à Montmorency : P1020943

    LA TOITURE VEGETALISE

  • Extension et rénovation à Montmorency : image_projet_mini_39349
  • Extension et rénovation à Montmorency : P1020942
  • Extension et rénovation à Montmorency : P1020849

    COULOIR MAISON EXISTANTE VERS EXTENSION

  • Extension et rénovation à Montmorency : P1020803

    LIAISON EXTENSION - MAISON EXISTANTE

  • Extension et rénovation à Montmorency : P1020808

    SALON

  • Extension et rénovation à Montmorency : P1020841

    SALON

  • Extension et rénovation à Montmorency : P1020830

    L'ENTREE

  • Extension et rénovation à Montmorency : P1030839
  • Extension et rénovation à Montmorency : P1030861
  • Extension et rénovation à Montmorency : P1020028

    LES COMBLES

  • Extension et rénovation à Montmorency : P1020801

    LA CHAMBRE

  • Extension et rénovation à Montmorency : 0y-14
  • Extension et rénovation à Montmorency : P1030862 (Custom)
  • Extension et rénovation à Montmorency : P1040057 (Small).JPG
  • Extension et rénovation à Montmorency : cuisine2
  • Extension et rénovation à Montmorency : cuisine3
  • Extension et rénovation à Montmorency : cuisine

Trouvez un architecte pour votre projet

Protection de vos données personnelles

Depuis toujours, architectes-france.com ne transfère aucune donnée personnelle à d'autres acteurs que ceux directement concernés par le projet (architectes, architectes d'intérieur...) et qui appartiennent à son réseau. Nos listes ne sont jamais transmises ou vendues à des partenaires extérieurs, même si ceux-ci appartiennent au domaine de la construction.
Toute modification dans ce domaine ne serait effectuée qu'avec votre consentement.

Je consens à ce que mes données personnelles soient collectées pour permettre à architectes-france de transférer votre projet aux architectes. Seul Architectes-france, ses équipes internes et la maitrise d'oeuvre concernée par le projet y ont accès. Aucune transmission de données à des tiers à l'exclusion de ceux décrits ci dessus n'est réalisée.

Mes données téléphoniques seront uniquement utilisées par Architectes-france.com et les architectes de notre réseau dans le cadre de la qualification et du suivi de mon projet.

Les données sont conservées pendant une durée de 18 mois courant à partir des derniers contacts effectifs entre architectes-france et vous ou architectes-france et un membre de la maitrise d'oeuvre en rapport avec ce projet et qui serait en relation avec architectes-france.

Conformément à la loi « informatique et libertés », vous pouvez exercer votre droit d'accès aux données vous concernant et les faire rectifier en contactant : Architectes-france, 23 avenue du Mirail - parc du Mirail - 33370 Artigues-près Bordeaux. Tél. 05.47.74.51.01 - contact@architectes-france.com

Trouvez un architecte pour votre projet

Protection de vos données personnelles

Depuis toujours, architectes-france.com ne transfère aucune donnée personnelle à d'autres acteurs que ceux directement concernés par le projet (architectes, architectes d'intérieur...) et qui appartiennent à son réseau. Nos listes ne sont jamais transmises ou vendues à des partenaires extérieurs, même si ceux-ci appartiennent au domaine de la construction.
Toute modification dans ce domaine ne serait effectuée qu'avec votre consentement.

Je consens à ce que mes données personnelles soient collectées pour permettre à architectes-france de transférer votre projet aux architectes. Seul Architectes-france, ses équipes internes et la maitrise d'oeuvre concernée par le projet y ont accès. Aucune transmission de données à des tiers à l'exclusion de ceux décrits ci dessus n'est réalisée.

Mes données téléphoniques seront uniquement utilisées par Architectes-france.com et les architectes de notre réseau dans le cadre de la qualification et du suivi de mon projet.

Les données sont conservées pendant une durée de 18 mois courant à partir des derniers contacts effectifs entre architectes-france et vous ou architectes-france et un membre de la maitrise d'oeuvre en rapport avec ce projet et qui serait en relation avec architectes-france.

Conformément à la loi « informatique et libertés », vous pouvez exercer votre droit d'accès aux données vous concernant et les faire rectifier en contactant : Architectes-france, 23 avenue du Mirail - parc du Mirail - 33370 Artigues-près Bordeaux. Tél. 05.47.74.51.01 - contact@architectes-france.com