
Maison de vacances (Rénovation)
Esquisse pour le réaménagement d'une maison sur l'île de Ré
Le souhait de la propriétaire est de transformer cette maison qui est voisine de la sienne afin d'y accueillir sa famille durant les vacances.
Le projet doit permettre de conserver trois chambres dans cette maison de 100m², tout en créant une salle de bain supplémentaire à l’étage et une cuisine au RDC. Les espaces communs et la fonctionnalité ont été privilégiés dans cette maison dont l’usage sera principalement estival.
Il s’agit également de réorienter la maison vers la cour sur laquelle elle n’a qu’une petite ouverture. Une large baie vitrée permettra de profiter de cet espace de vie commun aux deux maisons.
A l’étage, les surfaces sont optimisées afin de dégager un espace central de circulation et de détente qui permet de faire entrer la lumière au cœur de la maison.
-
-
Le rez-de-chaussée, avant modifications
-
Le rez-de-chaussée, modifié
-
L'étage, avant modifications
-
L'étage, modifié
-
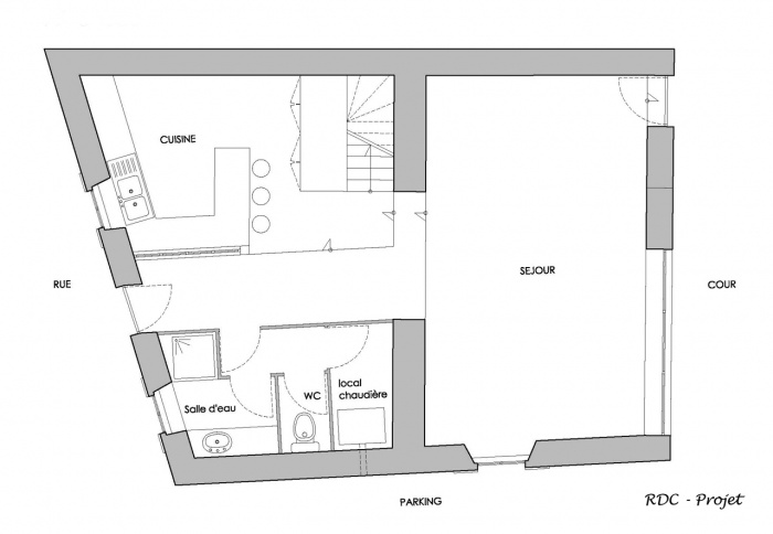
Plan du rez-de-chaussée
-
Plan de l'étage
-
vue du salon vers la cuisine
-
vue de la cuisine vers le salon
-
la cuisine
-
A l'étage, la bibliothèque
création d'une fenêtre à l'étage